Italiano
329.000 €

VENDESI VILLETTA RISTRUTTURATA

Villetta schiera in vendita • Sant'Agata Bolognese - VIA DEGLI ALBERI
RA 510 - SANT'AGATA BOLOGNESE - A pochi passi dal centro, l'Agenzia Immobiliare Velvet vi propone splendida villetta completamente ristrutturata nel 2017.

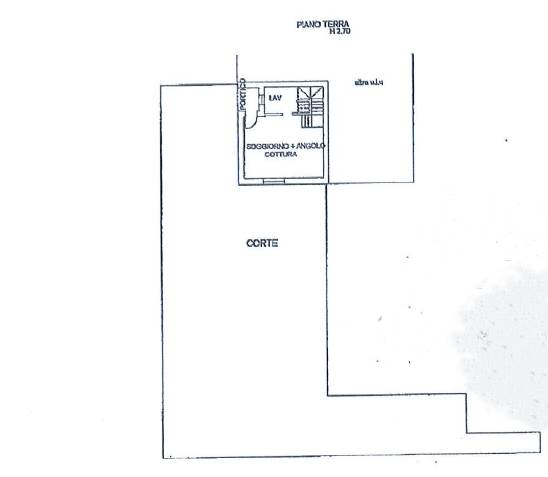
Questa bellissima villetta si sviluppa su tre piani con ingresso indipendente, così composta:

- P.T: ingresso in soggiorno con angolo cottura e accesso diretto al giardino, bagno/lavanderia.

- P.P: disimpegno notte,, camera matrimoniale, camera 3/4 e bagno.

- P.S: soffitta e ripostiglio.

Completano la proprietà garage e ampio giardino di circa 250 mq.

RICHIESTA: € 329.000,00

PER INFO CONTATTARE IL NUMERO: 059.80.91.31

L'indirizzo indicato nell'annuncio potrebbe non corrispondere.
CONTATTATECI SENZA ALCUN IMPEGNO!! oppure Vi invitiamo a lasciare il vostro numero di telefono per essere ricontattati. Grazie.
Presso il nostro ufficio abbiamo altre proposte immobiliari nelle zone di Bomporto, San Prospero, Ravarino, Nonantola, Crevalcore, Cavezzo, Medolla, Mirandola, Modena.
L' agenzia immobiliare Velvet ha diversi uffici per poter offrire la giusta competenza e conoscenza del luogo :
SAN PROSPERO - RAVARINO - MODENA.
Se disponete di un immobile il nostro Studio vi offre una perizia gratuita del valore di mercato e l' aiuto e la competenza nella gestione della Vendita dello stesso e dell' eventuale riacquisto.
Caratteristiche principali
Codice
RA510
Città
Sant'Agata Bolognese
Categoria
Villetta schiera
Prezzo
329.000 €
Locali
6
Mq
130
Box
1
Mq Box
17
Mq Giardino
250
Classe energetica
C
73,39 kWh/m²a
Stato Immobile
Ristrutturato
Grado
Signorile
Posizione
Campagna
Panorama
Vista Aperta
Lati Liberi
2
Giardino
Privato
Arredi
Possibilità
Tipo Soggiorno
Soggiorno
Tipo Cucina
Angolo Cottura
Riscaldamento
Autonomo
Tipo Riscaldam.
Caldaia
Tipo Impianto
Pavimento
Fonte Energetica
Metano
Acqua Calda
Autonoma
Raffrescamento
Split
Infissi
Legno Doppio Vetro
Serramenti
Nuovo
Persiana
Oscurante PVC
Pavim. Giorno
Gres Porcellanato
Pavim. Notte
Gres Porcellanato
Pavim. Cucina
Gres Porcellanato
Pavim. Bagno
Gres Porcellanato
Isolamento
Presente
Isolamento termico
Cappotto esterno
Isolamento acustico
Nessuno
Spessore cappotto (cm)
15
Destinato a residenti
Si

Accessori: Aria Condizionata, Cancello Elettrico, Doppi Vetri, Lavanderia, Passaggio Automobilistico, Passaggio Pedonale, Porta Blindata, Ripostiglio, Zanzariere

Mappa
VIA DEGLI ALBERI , Sant'Agata Bolognese (BO)
Richiedi informazioni
Invia
Condividi su
Cookie preference