Italiano
169.000 €

VENDESI VILLETTA

Villetta schiera in vendita • San Prospero (San Martino Secchia) - via canalazzo
SP 9785 - SAN PROSPERO - Adiacente al paese, l'Agenzia Immobiliare Velvet vi propone splendida villetta terra cielo, in ottima zona tranquilla così composta:

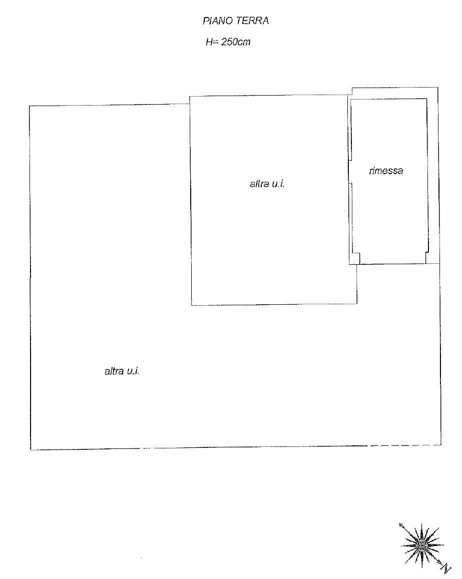
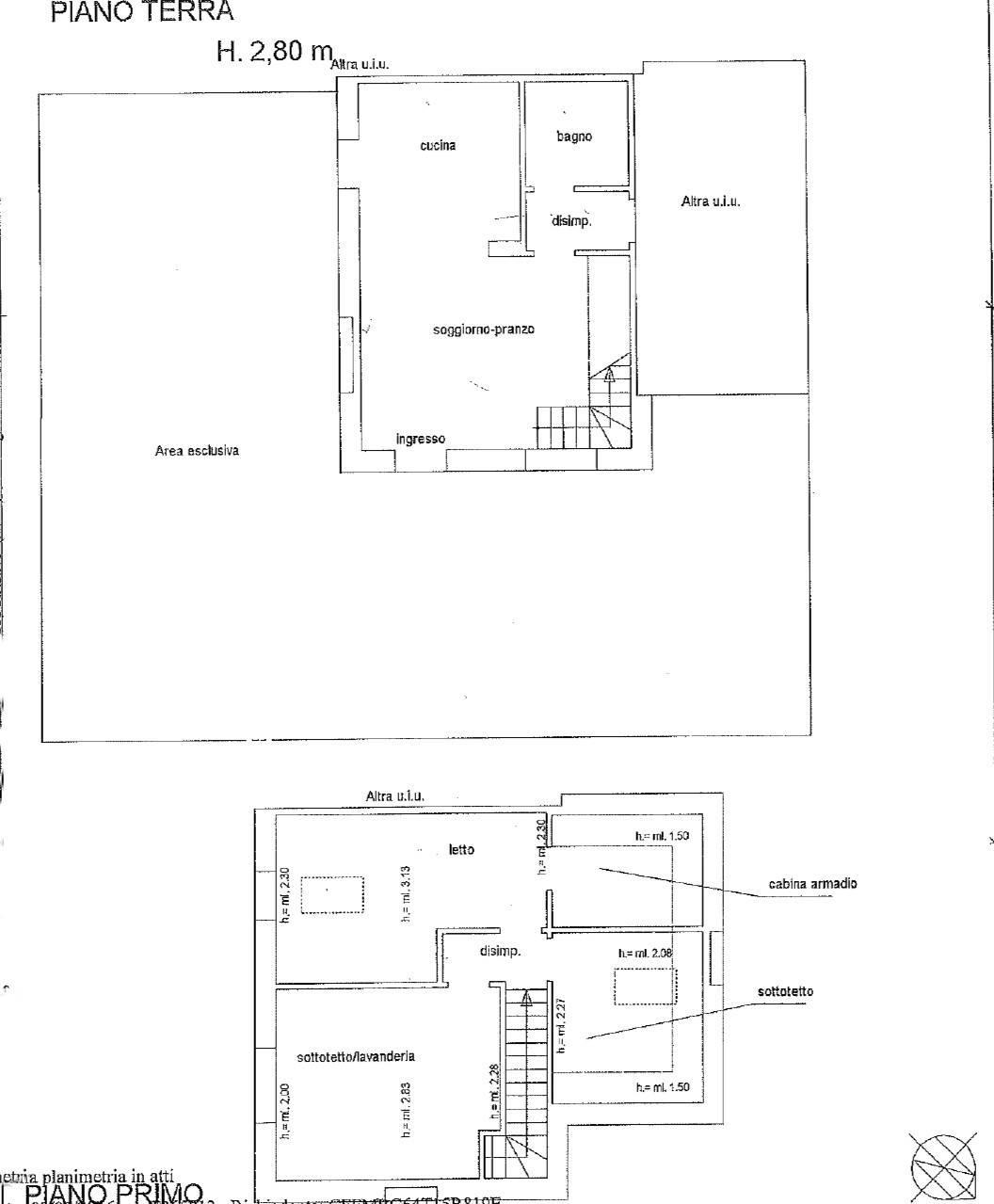
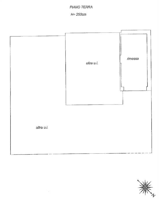
- P.T: ingresso in soggiorno, cucina abitabile e accesso diretto al giardino, disimpegno giorno, bagno.

- P.P: disimpegno notte, due camere matrimoniali di cui una con ripostiglio/cabina armadio e bagno.

Garage comunicante e area cortiliva.

RICHIESTA: € 169.000,00

PER INFO CONTATTARE IL NUMERO: 059.80.91.31

L'indirizzo indicato nell'annuncio potrebbe non corrispondere.
CONTATTATECI SENZA ALCUN IMPEGNO!! oppure Vi invitiamo a lasciare il vostro numero di telefono per essere ricontattati. Grazie.
Presso il nostro ufficio abbiamo altre proposte immobiliari nelle zone di Bomporto, San Prospero, Ravarino, Nonantola, Crevalcore, Cavezzo, Medolla, Mirandola, Modena.
L' agenzia immobiliare Velvet ha diversi uffici per poter offrire la giusta competenza e conoscenza del luogo :
SAN PROSPERO - RAVARINO - MODENA.
Se disponete di un immobile il nostro Studio vi offre una perizia gratuita del valore di mercato e l' aiuto e la competenza nella gestione della Vendita dello stesso e dell' eventuale riacquisto.
Caratteristiche principali
Codice
SP9785
Città
San Prospero (San Martino Secchia)
Categoria
Villetta schiera
Prezzo
169.000 €
Locali
5
Camere
2
Bagni
2
Mq
120
Box
1
Classe energetica
C
71,08 kWh/m²a
Stato Immobile
Buono
Grado
Signorile
Posizione
Campagna
Panorama
Vista Aperta
Lati Liberi
2
Giardino
Privato
Arredi
Possibilità
Tipo Soggiorno
Sala da Pranzo
Tipo Cucina
Semi Abitabile
Riscaldamento
Autonomo
Tipo Riscaldam.
Caldaia
Tipo Impianto
Pavimento
Fonte Energetica
Metano
Acqua Calda
Autonoma
Raffrescamento
Split
Infissi
Legno Doppio Vetro
Serramenti
Buono
Persiana
Oscurante Legno
Pavim. Giorno
Ceramica
Pavim. Notte
Ceramica
Pavim. Cucina
Ceramica
Pavim. Bagno
Ceramica
Isolamento
Presente
Isolamento termico
Cappotto esterno
Spessore cappotto (cm)
16
Destinato a residenti
Si

Accessori: Aria Condizionata, Cancello Elettrico, Doppi Vetri, Impianto Fotovoltaico, Lavanderia, Porta Blindata, Ripostiglio, Zanzariere

Mappa
via canalazzo , San Prospero (MO)
Richiedi informazioni
Invia
Condividi su
Cookie preference