Italiano
65.000 €

BILOCALE RISTRUTTURATO

Appartamento in vendita • Finale Emilia - Via Cesare Frassoni, 17
MO1103 - FINALE EMILIA - Nel Palazzo Ramondini, oggetto di restaurato post sisma proponiamo appartamento bilocale al piano terra. Da investimento.

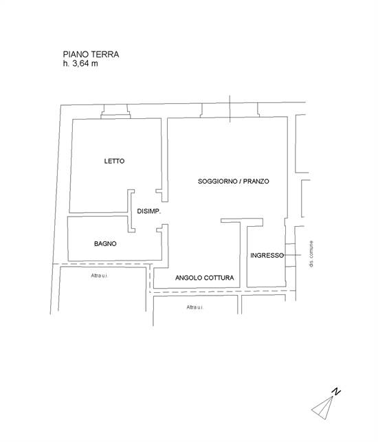
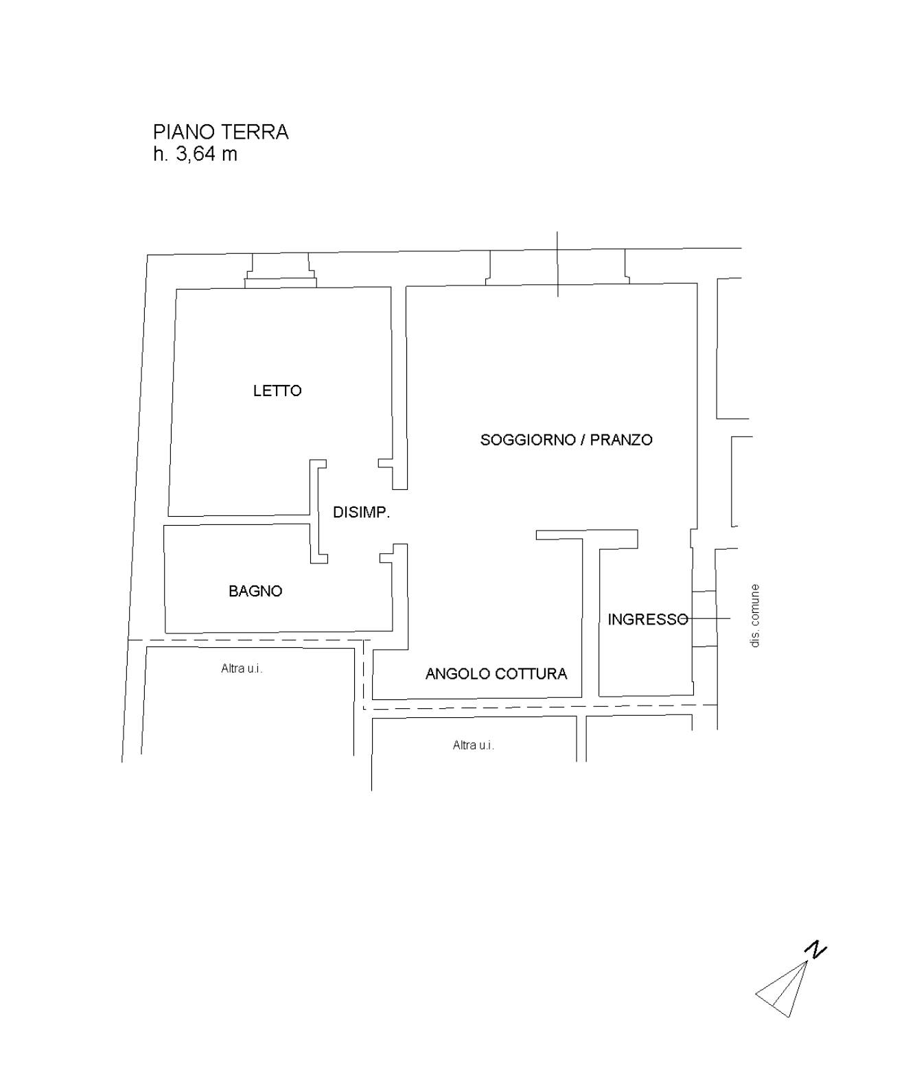
PT Ingresso, soggiorno con angolo cottura, camera matrimoniale e bagno.

• Classe Energetica A2
• Impianto di riscalamento autonomo
• Riscaldamento a pavimento
• Raffrescamento con "split"

Consegna Luglio 2026
Prezzo € 65.000

NB. L'appartamento viene venduto con vincolo locatizio.

Disponibili altri 3 appartamenti nello stesso Palazzo Ramondini. Fissa un appuntamento in ufficio per scoprire tutte le proposte ed i dettagli.

PER INFO CONTATTARE IL NUMERO: 059.80.91.31

L'indirizzo indicato nell'annuncio potrebbe non corrispondere.
CONTATTATECI SENZA ALCUN IMPEGNO!! oppure Vi invitiamo a lasciare il vostro numero di telefono per essere ricontattati. Grazie.
Presso il nostro ufficio abbiamo altre proposte immobiliari nelle zone di Bomporto, San Prospero, Ravarino, Nonantola, Crevalcore, Cavezzo, Medolla, Mirandola.
L' agenzia immobiliare Velvet ha diversi uffici per poter offrire la giusta competenza e conoscenza del luogo :
SAN PROSPERO - RAVARINO - MIRANDOLA - MODENA .
Se disponete di un immobile il nostro Studio vi offre una perizia gratuita del valore di mercato e l' aiuto e la competenza nella gestione della Vendita dello stesso e dell' eventuale riacquisto.
Caratteristiche principali
Codice
MO1103
Città
Finale Emilia
Categoria
Appartamento
Prezzo
65.000 €
Locali
3
Camere
1
Bagni
1
Mq
72
Piano
Terra
Classe energetica
A2
Stato Immobile
Ristrutturato
Lati Liberi
2
Arredi
Non Arredato
Tipo Soggiorno
Soggiorno
Tipo Cucina
Angolo Cottura
Riscaldamento
Autonomo
Tipo Riscaldam.
Caldaia a Condensazione
Tipo Impianto
Pavimento
Fonte Energetica
Metano
Acqua Calda
Autonoma
Raffrescamento
Split
Infissi
PVC Doppio Vetro
Serramenti
Nuovo
Persiana
Oscurante PVC
Pavim. Giorno
Gres Porcellanato
Pavim. Notte
Gres Porcellanato
Pavim. Cucina
Gres Porcellanato
Pavim. Bagno
Gres Porcellanato
Isolamento termico
Cappotto esterno
Isolamento acustico
Serramenti

Accessori: Cancello Elettrico, Doppi Vetri, Lavanderia, Parco Condominiale, Passaggio Automobilistico, Passaggio Pedonale, Porta Blindata, Rete Dati, Ripostiglio, Video Citofono

Mappa
Via Cesare Frassoni 17, Finale Emilia (MO)
Richiedi informazioni
Invia
Condividi su
Cookie preference