Italiano
135.000 €

PORZIONE DI CASA IN AFFITTO PER 2 ANNI

Porzione di Casa in vendita • Cavezzo (Disvetro) - VIA PIOPPA
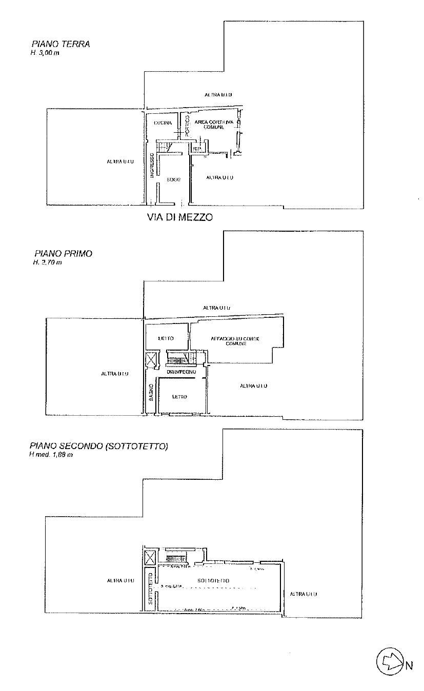
SP 9623 - CAVEZZO - Adiacente al paese in ottima zona tranquilla vi proponiamo in vendita porzione di casa terra cielo, in fase di ristrutturazione, così composta:

- piano terra: ingresso in soggiorno, disimpegno giorno, cucina abitabile da dove si può accedere al portico esterno.

- piano primo: disimpegno notte, due camere matrimoniali, bagno.
NO GARAGE, NO GIARDINO

AFFITTO CON RISCATTO per 2 anni
caparra 15.000 €
mensilità 700
Saldo alla compravendita 103.200,00€

RICHIESTA: € 135.000,00

PER INFO CONTATTARE IL NUMERO: 059.80.91.31

L'indirizzo indicato nell'annuncio potrebbe non corrispondere.
CONTATTATECI SENZA ALCUN IMPEGNO!! oppure Vi invitiamo a lasciare il vostro numero di telefono per essere ricontattati. Grazie.
Presso il nostro ufficio abbiamo altre proposte immobiliari nelle zone di Bomporto, San Prospero, Ravarino, Nonantola, Crevalcore, Cavezzo, Medolla, Mirandola.
L' agenzia immobiliare Velvet ha diversi uffici per poter offrire la giusta competenza e conoscenza del luogo :
SAN PROSPERO - RAVARINO - MIRANDOLA .
Se disponete di un immobile il nostro Studio vi offre una perizia gratuita del valore di mercato e l' aiuto e la competenza nella gestione della Vendita dello stesso e dell' eventuale riacquisto.
Caratteristiche principali
Codice
SP9623
Città
Cavezzo (Disvetro)
Categoria
Porzione di Casa
Prezzo
135.000 €
Locali
5
Camere
2
Bagni
1
Mq
90
Classe energetica
A++
Stato Immobile
Ristrutturato
Grado
Signorile
Posizione
Centro
Panorama
Vista Aperta
Giardino
Privato
Arredi
Non Arredato
Tipo Soggiorno
Soggiorno
Tipo Cucina
Abitabile
Riscaldamento
Autonomo
Acqua Calda
Autonoma
Pavim. Giorno
Ceramica
Pavim. Notte
Ceramica
Pavim. Cucina
Ceramica
Pavim. Bagno
Ceramica

Accessori: Porta Blindata, Zanzariere

Mappa
VIA PIOPPA , Cavezzo (MO)
Richiedi informazioni
Invia
Condividi su
Cookie preference