Italiano
115.000 €

PORZIONE DI CASA IN AFFITTO PER 2 ANNI

Porzione di Casa in vendita • Cavezzo (Disvetro) - VIA PIOPPA
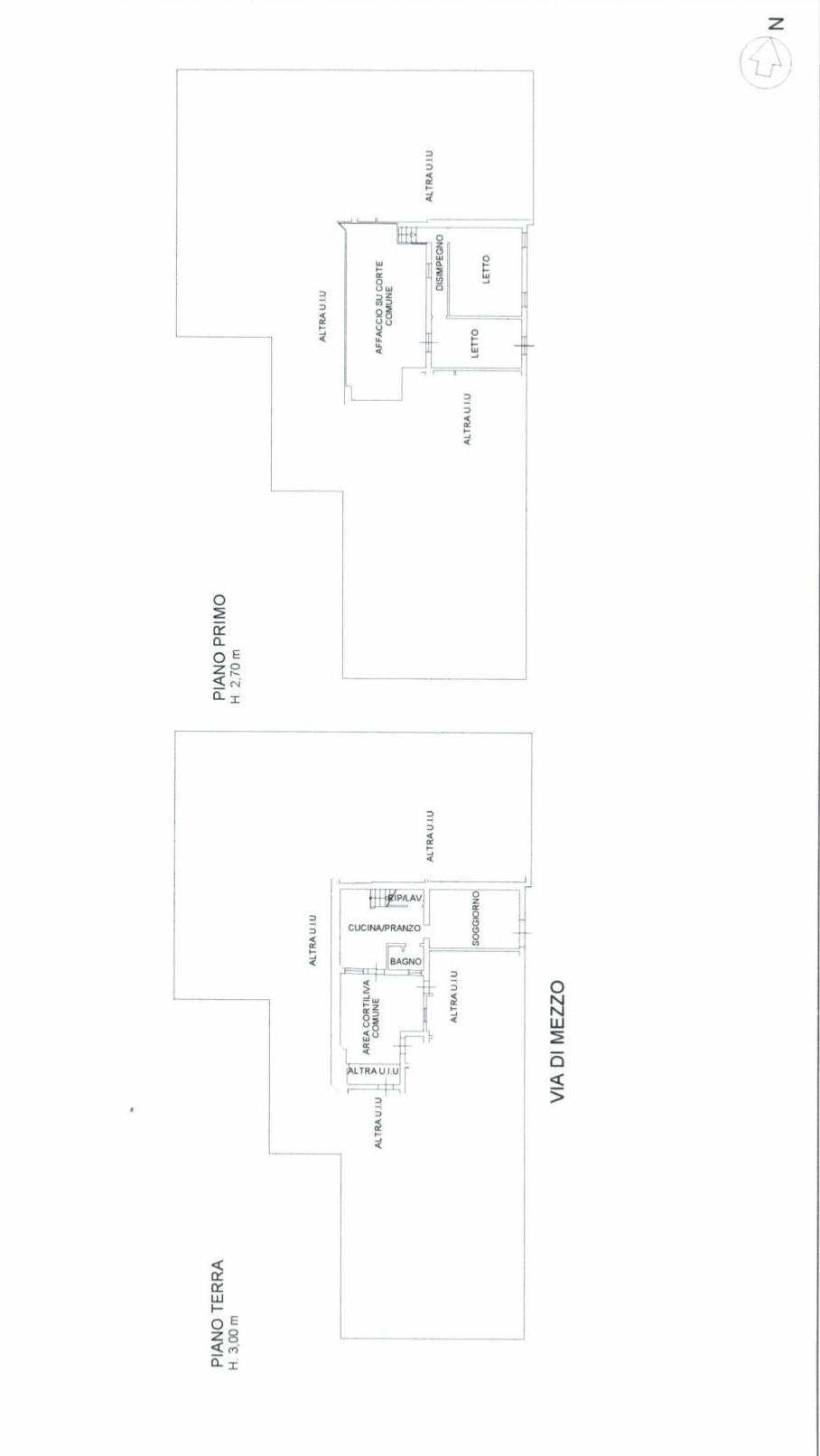
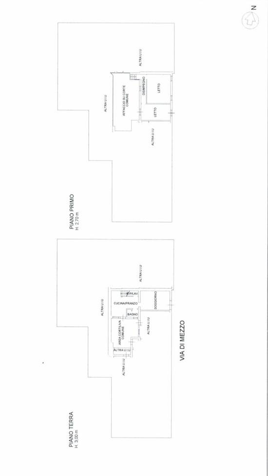
SP 9624 - CAVEZZO - Adiacente al paese in ottima zona tranquilla vi proponiamo in vendita porzione di casa terra cielo, in fase di ristrutturazione, così composta:

- piano terra: ingresso in soggiorno, disimpegno giorno, cucinotto, bagno.

- piano primo: disimpegno notte, due camere matrimoniali.

NO GARAGE, NO GIARDINO

AFFITTO CON RISCATTO per 2 anni
caparra 12.000 €
rata mensile 700 €
saldo dovuto alla compravendita 86.200,00 €

RICHIESTA: € 115.000,00

PER INFO CONTATTARE IL NUMERO: 059.80.91.31

L'indirizzo indicato nell'annuncio potrebbe non corrispondere.
CONTATTATECI SENZA ALCUN IMPEGNO!! oppure Vi invitiamo a lasciare il vostro numero di telefono per essere ricontattati. Grazie.
Presso il nostro ufficio abbiamo altre proposte immobiliari nelle zone di Bomporto, San Prospero, Ravarino, Nonantola, Crevalcore, Cavezzo, Medolla, Mirandola.
L' agenzia immobiliare Velvet ha diversi uffici per poter offrire la giusta competenza e conoscenza del luogo :
SAN PROSPERO - RAVARINO - MIRANDOLA .
Se disponete di un immobile il nostro Studio vi offre una perizia gratuita del valore di mercato e l' aiuto e la competenza nella gestione della Vendita dello stesso e dell' eventuale riacquisto.
Caratteristiche principali
Codice
SP9624
Città
Cavezzo (Disvetro)
Categoria
Porzione di Casa
Prezzo
115.000 €
Locali
5
Mq
78
Classe energetica
A++
Stato Immobile
Ristrutturato
Grado
Signorile
Posizione
Campagna
Panorama
Vista Aperta
Arredi
Non Arredato
Tipo Soggiorno
Soggiorno
Tipo Cucina
Cucinotto
Riscaldamento
Autonomo
Acqua Calda
Autonoma
Pavim. Giorno
Ceramica
Pavim. Notte
Ceramica
Pavim. Cucina
Ceramica
Pavim. Bagno
Ceramica
Mappa
VIA PIOPPA , Cavezzo (MO)
Richiedi informazioni
Invia
Condividi su
Cookie preference